La casa prefabricada móvil y extensible Bastone de 19×20 pies es la solución ideal para quienes buscan un alojamiento temporal o una oficina portátil. Equipada con baño integrado, ha sido diseñada para ser fácilmente transportable y configurable, lo que la convierte en una opción perfecta para viajes frecuentes o usos temporales. Gracias a su rápido montaje y su diseño interior completamente terminado, ofrece comodidad y practicidad en un espacio compacto pero funcional.
CARACTERÍSTICAS TÉCNICAS
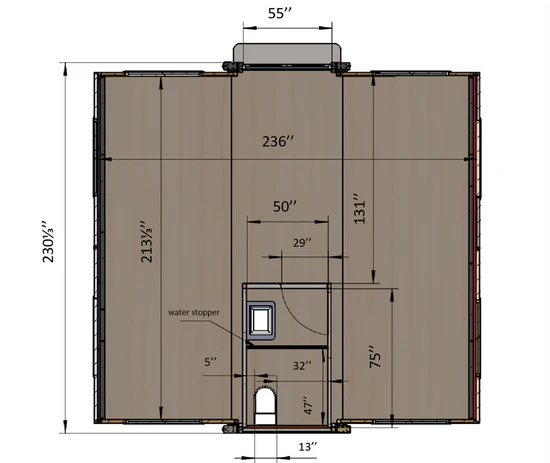
📏 Dimensiones externas:
- Longitud: 6,14 m (20,14’)
- Ancho: 6,195 m (20,32’)
- Altura: 2,53 m (8,3’)
🏠 Espacio interior: 32,5 m² (349,7 ft²)
📏 Altura interna: 2,27 m (7,45’)
🚪 Puertas:
- Puerta principal: 1,96 m x 0,72 m (6,43’ x 2,36’)
- Segunda puerta: 2,045 m x 1,395 m (6,71’ x 4,58’)
🪟 Ventanas:
- Dimensiones disponibles: 0,5 m x 0,69 m (1,64’ x 2,26’) y 0,8 m x 1,2 m (2,62’ x 3,94’)
⚖ Peso del producto: 3345 kg (7359 lbs)
🏗 Materiales:
- Estructura: Acero resistente
- Paredes y techo: PSE (paneles aislantes)
- Piso: Melamina y vinilo PVC
- Tuberías: Entrada y salida en PPR (polipropileno random)
- Resistencia al viento: Hasta 70 mph (según la base y las condiciones específicas)
EQUIPAMIENTO Y FUNCIONALIDAD
⚡ Instalaciones eléctricas:
- Ventilador extractor
🚽 Baño Integrado:
- Inodoro
- Ducha con cabezal
- Lavabo con armario y espejo
🔧 Montaje fácil:
- Sistema de ensamblaje en 5 sencillos pasos, listo en 1 hora
- Paredes extensibles que forman el techo y los laterales
📦 Alta portabilidad:
- Fácil de transportar e instalar en diversas ubicaciones
VENTAJAS Y BENEFICIOS
✅ Totalmente prefabricada: Decoración interior terminada, lista para su uso
✅ Versatilidad: Ideal para viviendas temporales, oficinas, cabinas de vigilancia o estructuras móviles
✅ Montaje rápido: Se ensambla en apenas 1 hora con un proceso intuitivo
✅ Alta movilidad: Estructura diseñada para desmontarse y reinstalarse fácilmente
✅ Comodidad y funcionalidad: Baño completo y distribución optimizada del espacio
✅ Aislamiento térmico y acústico: Mantiene una temperatura confortable y garantiza un ambiente tranquilo
USOS RECOMENDADOS
🏠 Alojamientos temporales: Perfecta para campamentos, zonas de emergencia o espacios de trabajo móviles
🏢 Oficinas portátiles: Solución elegante y funcional para negocios en movimiento
🏕 Campings y parques: Ideal para hospedaje en entornos naturales
🎪 Eventos y exposiciones: Espacio adaptable para ferias, congresos o áreas de recepción temporal
GARANTÍA Y SERVICIO POSTVENTA
📜 Garantía: 2 años en la estructura y sistemas principales
☎ Soporte técnico: Disponible para instalación, mantenimiento y personalización
🔧 Durabilidad garantizada: Diseñada con materiales de alta calidad para soportar el uso intensivo y condiciones adversas
 
	 
				 
				
 
				 
				 
				 
				 
				 
				 
				 
				 
				 
				 
				 
				 
				 
				 
				 
				 
				 
								 
								 
								 
								 
								 
								 
								 
								 
								 
								 
								 
								 
								 
								 
								 
								 
								 
								 
		 
		 
		 
		 
		